Bouwverslag Politiepost Kleine Drift 17 Hilversum – Tekst en foto’s Ben Telleman – november 2024
Een stukje historie.
De Hilversumse wijk “Over het Spoor” was in het begin van de vorige eeuw een probleemwijk.
Voor een aantal buurtbewoners was dit de aanleiding om zich tot het gemeentebestuur te wenden met het verzoek meer politietoezicht in de wijk te organiseren. Dit resulteerde in een verzoek aan architect Willem Marinus Dudok (1884-1974) een politiepost te ontwerpen.
In 1919 werd het functionele gebouwtje, ontworpen in de stijl van de Amsterdamse School in gebruik genomen. Het gebouwtje omvatte o.a. 2 cellen, een wachtlokaal en 2 aanbouwen. Een aanbouw ten behoeve van een rijwielbrancard en een tweede voor de huisvesting van een brandspuit.
Tot 1934 was het gebouwtje in gebruik door de Hermandad. Daarna werd het een woonhuis. In de jaren 2010-2011 werd het door Dudok Wonen gerestaureerd en heeft het intussen de Monumentenstatus. Momenteel wordt het verhuurd als bedrijfsruimte.
Voorbereiding voor de bouw van het model.
Een eerste studie voor dit op de historische modelbaan van Modelbouw Vereniging Hilversum nog ontbrekende pandje werd uitgevoerd door modelbouwer Rob Reinders. Hij bouwde een eerste studiemodel.

Een eerste studiemodel in schaal 1:87 (H0 schaal) door Rob Reinders
Rob zorgde ook voor de tekeningen op schaal 1:87, de H0 schaal.



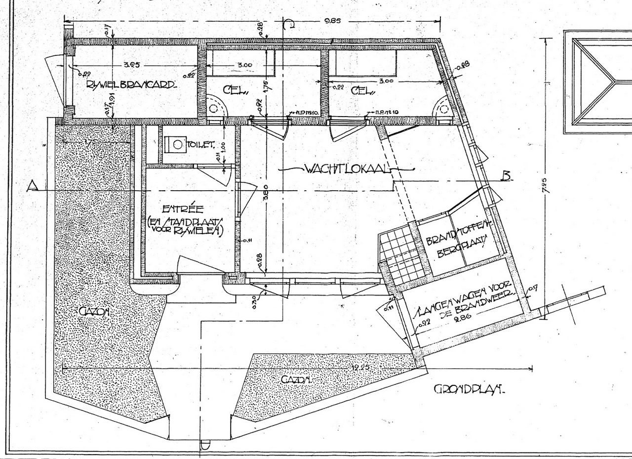
De tekeningen en de plattegrond. Bron: Archief Gooi- en Vechtstreek...
Na deze eerste verkenningen heb ik de bouw overgenomen en ben begonnen met het maken van foto’s van het origineel ten einde zoveel mogelijk details te ontdekken en vast te leggen. Zoals de tekeningen en met name de plattegrond al tonen staat er nauwelijks een muur haaks op elkaar.
Ook tonen de tekeningen de verschillende soorten metselwerk. Foto’s van het gebouwtje zijn dus onontbeerlijk om al deze details in het model te kunnen verwerken. Hieronder een paar foto’s met details van het metselwerk dat wachtte op nabouw in schaal.
Voor dit metselwerk is een kunststof plaat van Slater’s gebruikt.

Details rond de voordeur……. en het andere deel van de voorgevel.
Details van de aanbouw aan de Zuiderweg….. en aan de Kleine Drift (met een stukje schoorsteen links)
Ik besloot van dikker kunststof materiaal de wanden samen te stellen en deze vervolgens met uitgesneden fragmenten, soms zelfs steentje voor steentje, te bekleden met de Slater’s muurplaat.
De foto hieronder toont deze werkwijze, waarbij meteen ook verstevigingen werden aangebracht om kromtrekken te voorkomen en voldoende lijmpunten te creëren t.b.v. de stevigheid.

Ook de voordeur en de kozijnen werden zo nauwkeurig nagemaakt uit stukjes kunststof, afkomstig van oude floppy disks. De roeden werden gemaakt uit regenpijpen afkomstig van andere bouwdozen.

Een afbeelding van de voorgevel, die intussen is ingewassen met een mengsel van zilverpoets (Silvio) en water. Dit mengsel werd op de muren gesmeerd en na droging met een vochtige doek weer afgeveegd, waardoor de grijze voegen zichtbaar werden. Hierdoor zijn de details van het metselwerk goed te zien en geeft dit het geheel ook een realistisch matte uitstraling.
De verschillende onderdelen werden regelmatig qua afmetingen getoetst op het plattegrondje. Zo konden ook de hoeken werden afgeschuind in de juiste hoek, er was immers geen hoek hetzelfde.
Menig keer werd het bouwproject stilgelegd om na een nachtelijke ingeving weer te worden opgestart. Toen alle wanden klaar waren en op de juiste maat, werd alles, ook weer m.b.v. de plattegrond in elkaar gezet. De schoorsteen was daarbij een extra handicap omdat een klein stukje ervan tussen voorgevel en aanbouw uitstak. Bovendien verjongde hij naar boven toe ook nog eens aan één zijde. Ook de muurtjes, een verhaal apart qua metselwerk, vonden hun plekje op de plattegrond, evenals de stoep naar de voordeur.

Nu dit alles klaar was werd het tijd om de zaak van dakgoten en het pannendak te voorzien. Ook dit onderdeel kostte een paar uur nachtrust voor ik alle verschillende hellingen, hoeken en dakvorsten op de juiste maat kon krijgen. Omdat het dak zo ingewikkeld was besloot ik het telkens per deel af te dekken met kleine stukjes glad karton, die vervolgens door papierlijm en plakbandstroken tot een compleet dak werden “samengesmeed” Op onderstaande foto is dit goed te zien. Toen het hele dak “dicht” was werd het geheel met schilders (paars) tape op de muren vastgezet. Vervolgens werden alle stukken dak met papierlijm en krantenpapier (blauw van paginagrootte advertenties) tot één geheel gevormd, als dragende constructie en bevestigingsplaats voor de dakpanelen. Alle kieren konden zo worden gedicht en sloten zo tevens goed aan op de wanden.

Eerst met stukje karton…… daarna met papier en tape tot één geheel “gesmeed”.
Dankzij deze composietsamenstelling was een stevige basis ontstaan voor de verschillende panelen die nu uit de dakplaat van Noch gesneden konden worden en met houtlijm vastgezet konden worden. Ook hier is weer gebruik gemaakt van pasmalletjes uit karton. Op onderstaande foto is ook te zien dat het nog ontbrekende dagdeel ook een bepaalde kromming heeft. De dakgoten werden gemaakt van een kunststof strip die in de lengte werd ingeritst (net niet doorgesneden) waardoor hij in een rechte hoek kon worden gebogen. Vervolgens in de hoek een filmpje lijm om de hoek te fixeren. Op deze foto is ook te zien dat de schoorsteen zich naar boven verjongt en ook nog eens een metselversiering heeft conform het origineel.


Ook zijn hier goed de loodslabben te zien, die op de schoorsteen van dun grijs karton zijn gemaakt. Later is met grijs krantenpapier de aansluiting tussen dakpannen en loodslabben gemaakt. Door dit dunnen papier voorzichtig met verdunde houtlijm te tamponeren nemen ze de vorm van de dakpannen aan en vormen zo een geheel met de loodslabben op de schoorsteenmuur. 
Het stukje bij de dakgoot is later nog extra bijgewerkt. Na het verlijmen van de dakvorsten en het op kleur brengen ervan was de bouw grotendeels klaar.
Een volgend onderdeel was het aanbrengen van verlichting. In het gebouwtje is dit gedaan met 3 warm/witte leds. Een ander verhaal is de speciaal ontworpen buitenlamp.

Twee opnames van de lamp, van opzij en van voren……

alsmede het schaal model.....
Van een klein stukje doorzichtige kunststof werden de hoeken afgeschuind en van dun op kleur gebracht papier de omlijsting gemaakt. Vervolgens werd er een klein gaatje geboord in de achterkant waarin een SMD Led werd vastgezet. En zo ziet het gebouwtje er uiteindelijk uit in het nachtelijk duister. En een extra plaatje van de brandende buitenlamp.


En zo kon ik het gebouwtje dan op 19 oktober 2024 (105 jaar na de ingebruikname) zijn plekje laten innemen op de historische modelbaan van de Modelbouw Vereniging Hilversum.

De plaatsing op de historisch juiste plek ……. zoals op de luchtopname uit 1935 van KLM-aerocarto